Bestandsmodellierung eines Wasserturms
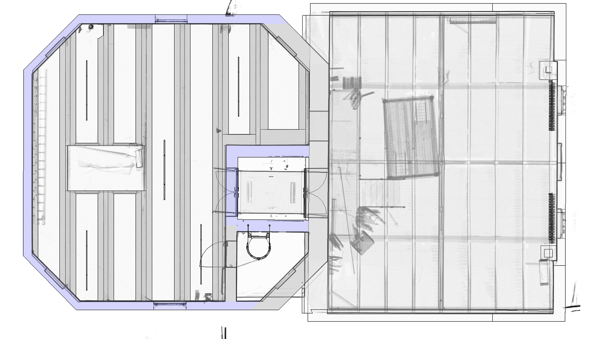
Für die Firma Wroblewski wurden in kürzester Zeit drei Etagen eines Wasserturms modelliert. Die Scandaten wurden mit einem FARO Focus Laserscanner aufgenommen und mit der Software Scene registriert.
Die 3D-Modellierung erfolgte in Autodesk Revit unter Verwendung des Plug-ins von Qbitec. Dieses ermöglichte es dem Modellierer, sich in Revit direkt in die Standpunkte des Scanners zu versetzen, um besser zu erkennen, welche Elemente modelliert werden mussten.
Das resultierende Modell dient als Grundlage für die Neugestaltung einer Stahltreppe, die im Unternehmen vorgefertigt werden soll. Aufgrund dieser Fertigungsmethode waren die Anforderungen an die Genauigkeit in den Anschlussbereichen besonders hoch.
Interesse an unserem Service?
Wenn Sie sich für mehr über unsere Modellierungsdienstleistungen erfahren möchten, dann rufen Sie uns gern an oder nutzen Sie unser Kontaktformular. Wir werden alle Ihre Fragen beantworten.






