Bestandsmodellierung von historischen Gebäuden
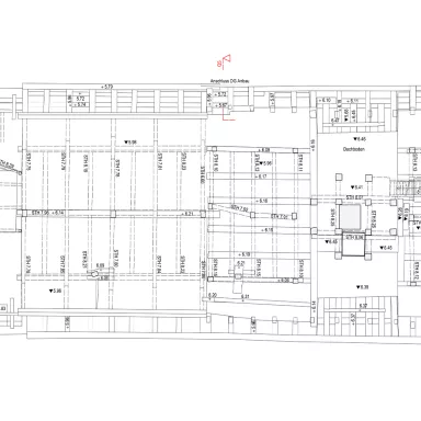
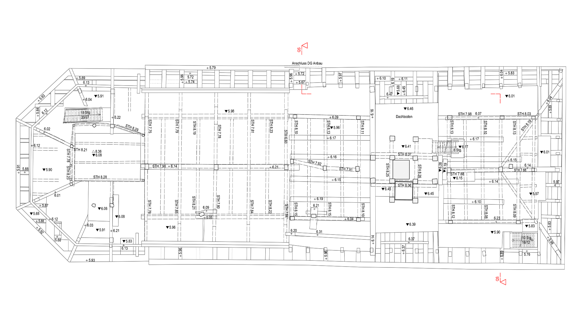
Historische Gebäude weisen oftmals besondere Konstruktionsmerkmale auf. Für die Sanierung solcher Bauwerke ist es deshalb nötig, spezielle Elemente der Gebäudekonstruktion in der Bestandsmodellierung hervorzuheben.
So haben wir im Projekt „Kirche Jahnsdorf“ neben den Außenansichten die Holzbalkenlage über dem Kirchenschiff dargestellt. Außerdem wurden verschiedene Einbauten im Laienbereich und Altarraum, wie Kanzel, Kirchenbänke, Altar mit Altarorgel und eine Empore abgebildet. Um möglichst viele Informationen aus der Punktwolke zu ziehen, hat der Auftraggeber darüber hinaus um Detailschnitte von Kirchenfenstern gebeten.
Auf Grundlage der 2D-Auswertung und mit Hilfe der 3D-Punktwolke des Vermessungsbüros Greim war es ebenfalls möglich, in kurzer Zeit ein 3D-Modell zu generieren.
Interesse an unserem Service?
Wenn Sie sich für mehr über unsere Modellierungsdienstleistungen erfahren möchten, dann rufen Sie uns gern an oder nutzen Sie unser Kontaktformular. Wir werden alle Ihre Fragen beantworten.



