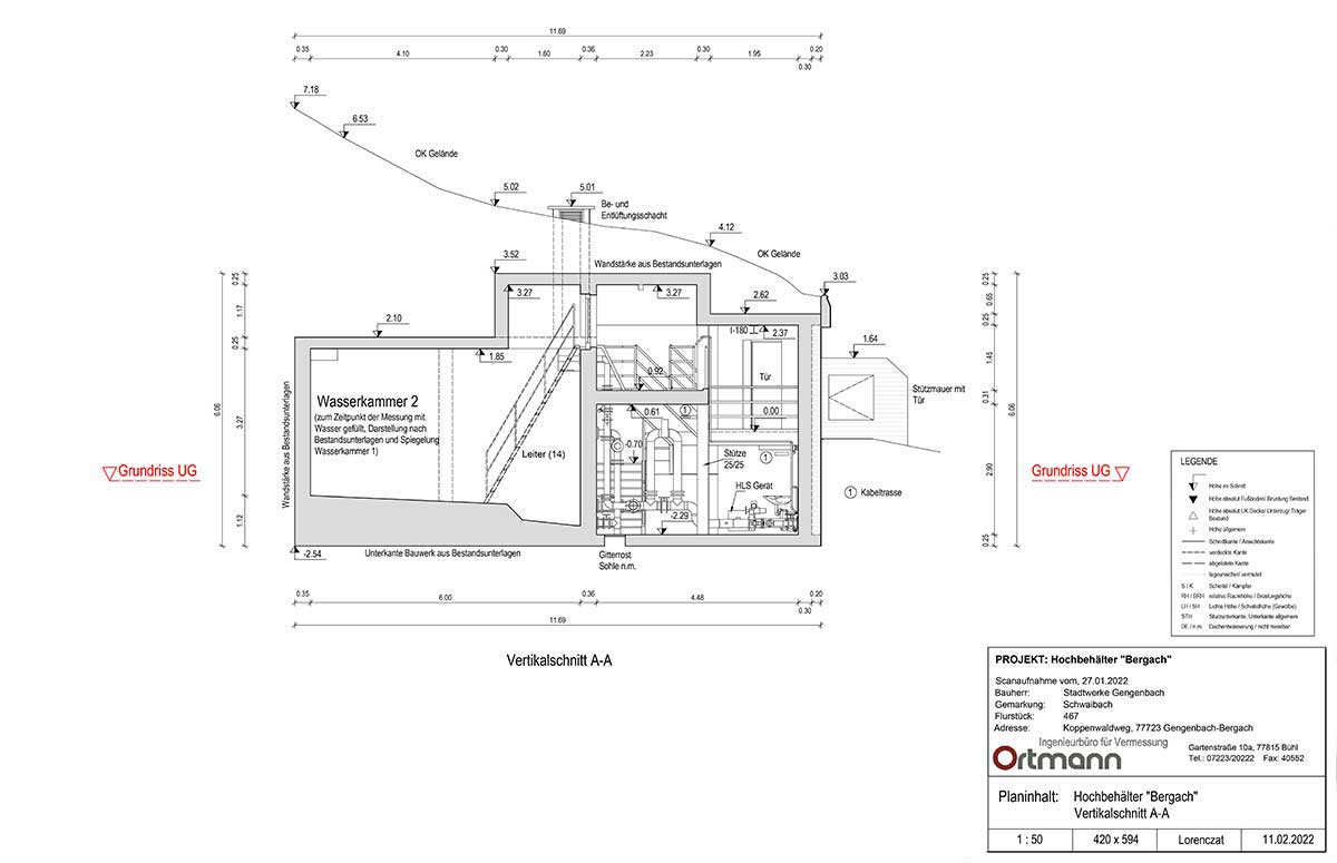
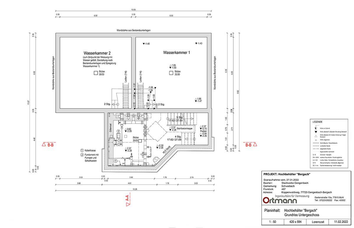
3D-Modellierung und 2D-Planableitung vom Hochbehälter in Bergach
Für die Sanierung des Hochbehälters in Bergach werden exakte Bestandsdaten benötigt. Die gesamte Anlage ist vollständig in Betrieb und wurde speziell für das Aufmaß abgepumpt. In einem kurzen Zeitfenster erfolgte die Aufnahme durch IB Ortmann mittels terrestrischem Laserscanning.
Die so erzeugten Punktwolkendaten wurden als Grundlage für die Modellierung verwendet. Besonders anspruchsvoll war die Bearbeitung der vielen Leitungen, Armaturen, Treppen und Anlagen auf engstem Raum. Zusätzlich zum 3D-Modell wurden 2D-Planableitungen erstellt. Die Pläne wurden mit Texturen ergänzt und sind zusammen mit dem Modell die ideale Grundlage für die weitere Planung der Sanierung.
Interesse an unserem Service?
Wenn Sie sich für mehr über unsere Modellierungsdienstleistungen erfahren möchten, dann rufen Sie uns gern an oder nutzen Sie unser Kontaktformular. Wir werden alle Ihre Fragen beantworten.







