Modeling

Alte Post Schwerin - Bestandserfassung

Paragraphs
Wysiwyg text

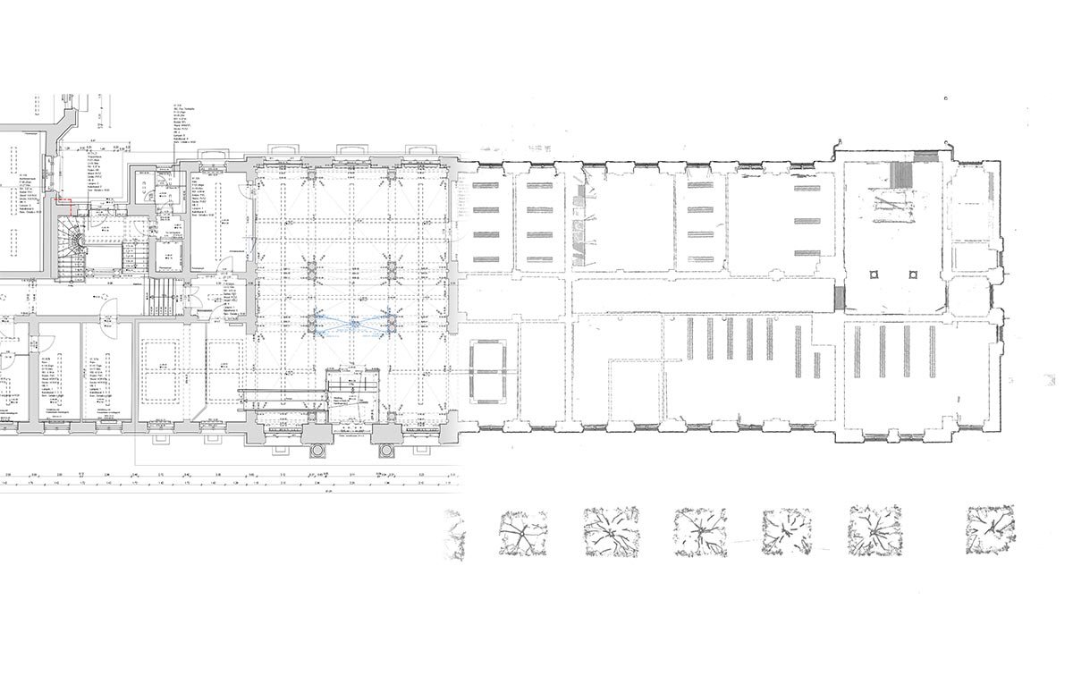
Das denkmalgeschützte Postgebäude in Schwerin soll vollständig saniert werden, um als neuer Amtssitz der obersten Landesbehörde zu dienen. Das Gebäude und das umliegende Gebiet wurden für diesen Zweck mit einem terrestrischen Laserscanner (FARO FocusS 150), einem Tachymeter und einer Drohne aufgenommen, um vollständige Bestandsdaten mit einer optimalen Genauigkeit zu erzielen.

Anschließend wurde die Registrierung der Scandaten in der Software PointCab Origins durchgeführt. Die gesamte Planarbeit erfolgte in Autodesk AutoCAD 2021. Im Anschluss wurden Schnitte abgeleitet und Grundrisse gezeichnet.

Das CAD-Lastenheft des Hochbaus, Betrieb für Liegenschaften Mecklenburg-Vorpommern (Version 1.0, Stand 10.09.2015) und die baufachlichen Richtlinien Gebäudebestandsdokumentation für Standard Bauverwaltung des Landes Mecklenburg-Vorpommern (BFR GBestand) dienten als Vorgaben für die Pläne.

Das Resultat waren anspruchsvolle 2D-Pläne als Planungsgrundlage, die unser CAD-Team geliefert hat. Hinzu kamen Fassadenansichten, Grundrisse, Dachaufsichten, Schnitte, Detailansichten vom Deckenspiegel, Lageplan, Katasterauszug und Leitungsauskunft.

Alte Post Schwerin - Bestandserfassung Header
Alte Post Schwerin - Bestandserfassung 1
Alte Post Schwerin - Bestandserfassung 2
Alte Post Schwerin - Bestandserfassung 3
Alte Post Schwerin - Bestandserfassung 4
Alte Post Schwerin - Bestandserfassung 5
Alte Post Schwerin - Bestandserfassung 6
Alte Post Schwerin - Bestandserfassung Header
Alte Post Schwerin - Bestandserfassung 1
Alte Post Schwerin - Bestandserfassung 2
Alte Post Schwerin - Bestandserfassung 3
Alte Post Schwerin - Bestandserfassung 4
Alte Post Schwerin - Bestandserfassung 5
Alte Post Schwerin - Bestandserfassung 6
Title
Fragen oder Interesse?
Wysiwyg text

Interesse an unserem Service?

Wenn Sie sich für mehr über unsere Modellierungsdienstleistungen erfahren möchten, dann rufen Sie uns gern an oder nutzen Sie unser Kontaktformular. Wir werden alle Ihre Fragen beantworten.

Title secondary
Rufen Sie gleich an!
Offices
Name
Standort Ost Dresden
Title tertiary
Jetzt Angebot anfordern