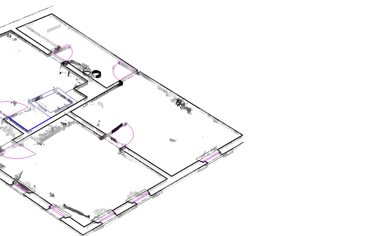
Bestandsmodellierung eines alten Wohnhauses mit Scheune
Das Vermessungsbüro Schöllhorn + Böhret GbR hat uns für dieses Projekt die Scandaten eines Wohnhauses mit angrenzender Scheune zur Verfügung gestellt.
Für die Modellierung wurde neben Autodesk AutoCAD die Software FARO® As-BuiltTM genutzt. Dazu unterteilten wir die Punktwolke in Autodesk ReCap in Regionen. Mit den As-Built-Tools für AutoCAD war es nun möglich, die geladene Punktwolke schnell in die notwendigen Bereiche für die Erstellung der Grundrisse, Ansichten und Schnitte zu separieren.
Zur Unterstützung der Auswertung stand der As-Built Modeler zur Verfügung. Hier können die Panoramaansichten der Scanstandpunkte eingesehen und Punktkoordinaten abgenommen werden.
Interesse an unserem Service?
Wenn Sie sich für mehr über unsere Modellierungsdienstleistungen erfahren möchten, dann rufen Sie uns gern an oder nutzen Sie unser Kontaktformular. Wir werden alle Ihre Fragen beantworten.






