Modeling

Bestandsmodellierung eines denkmalgeschützten Gebäudes in Lorsch

Paragraphs
Wysiwyg text

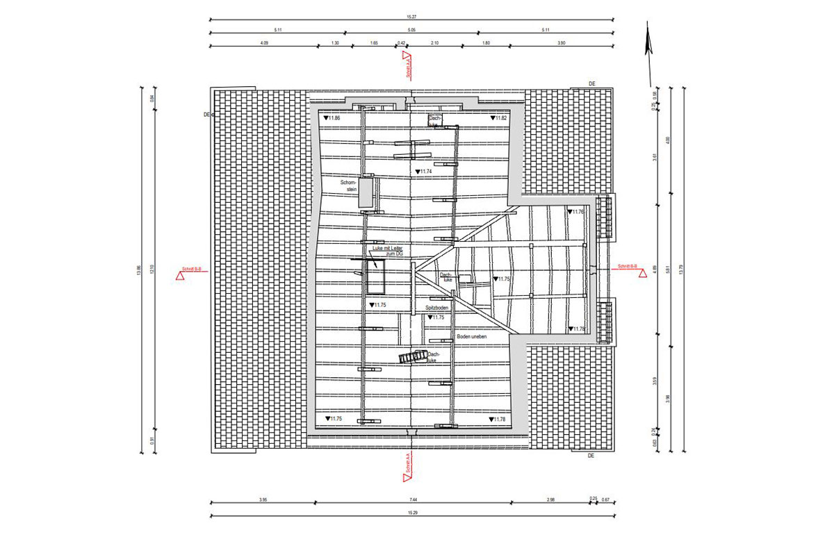
Im Zuge einer Neubebauung des ehemaligen Feuerwehrgeländes in Lorsch soll ein denkmalgeschütztes Gebäude aus dem 19. Jahrhundert saniert und zu einem Wohnhaus umgebaut werden.

Für die anstehenden Baumaßnahmen wurden alle Geschosse sowie die Fassaden des Backsteinbaus mit Hilfe eines FARO Focus gescannt und Farbfotos zur Verfügung gestellt. Bei der anschließenden Modellierung in Autodesk AutoCAD lag ein besonderer Schwerpunkt auf der Darstellung der Fassadendetails mit Ornamenten und der gewundenen Holztreppe im Inneren.

Bestandsmodellierung eines denkmalgeschützten Gebäudes in Lorsch Header
Bestandsmodellierung eines denkmalgeschützten Gebäudes in Lorsch 1
Bestandsmodellierung eines denkmalgeschützten Gebäudes in Lorsch 2
Bestandsmodellierung eines denkmalgeschützten Gebäudes in Lorsch 3
Bestandsmodellierung eines denkmalgeschützten Gebäudes in Lorsch 4
Bestandsmodellierung eines denkmalgeschützten Gebäudes in Lorsch 5
Bestandsmodellierung eines denkmalgeschützten Gebäudes in Lorsch 6
Bestandsmodellierung eines denkmalgeschützten Gebäudes in Lorsch Header
Bestandsmodellierung eines denkmalgeschützten Gebäudes in Lorsch 1
Bestandsmodellierung eines denkmalgeschützten Gebäudes in Lorsch 2
Bestandsmodellierung eines denkmalgeschützten Gebäudes in Lorsch 3
Bestandsmodellierung eines denkmalgeschützten Gebäudes in Lorsch 4
Bestandsmodellierung eines denkmalgeschützten Gebäudes in Lorsch 5
Bestandsmodellierung eines denkmalgeschützten Gebäudes in Lorsch 6
Title
Fragen oder Interesse?
Wysiwyg text

Interesse an unserem Service?

Wenn Sie sich für mehr über unsere Modellierungsdienstleistungen erfahren möchten, dann rufen Sie uns gern an oder nutzen Sie unser Kontaktformular. Wir werden alle Ihre Fragen beantworten.

Title secondary
Rufen Sie gleich an!
Offices
Name
Standort Ost Dresden
Title tertiary
Jetzt Angebot anfordern