Bestandsmodellierung eines historischen Speichergebäudes
Ziel des Projektes war die umfassende Bestandserfassung des historischen Speichergebäudes in Bützow.
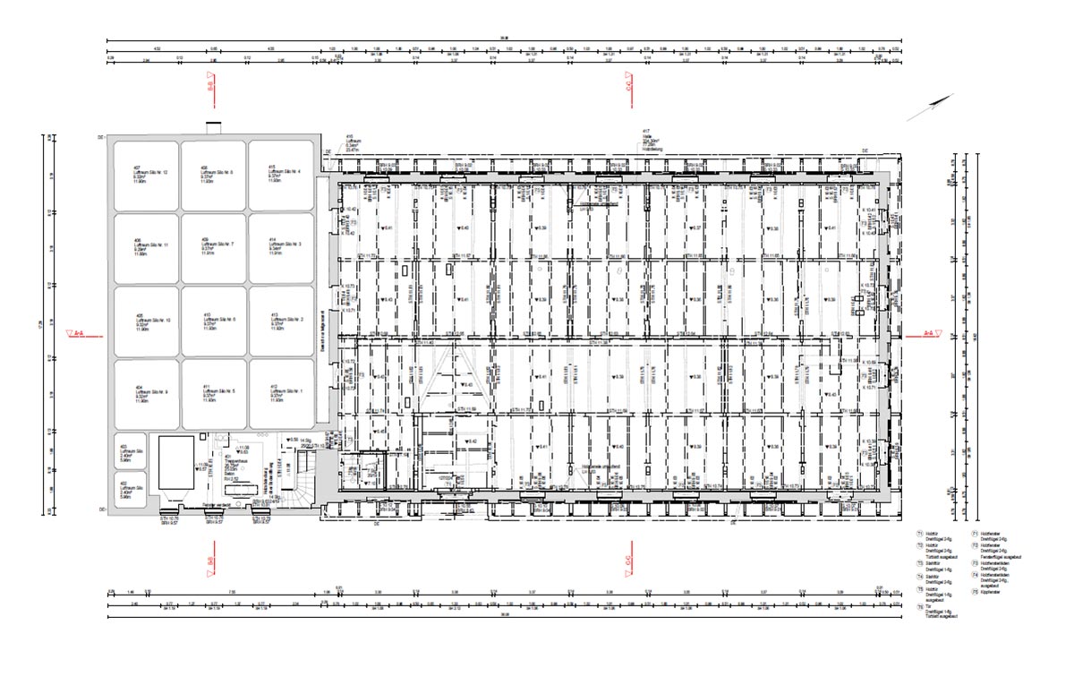
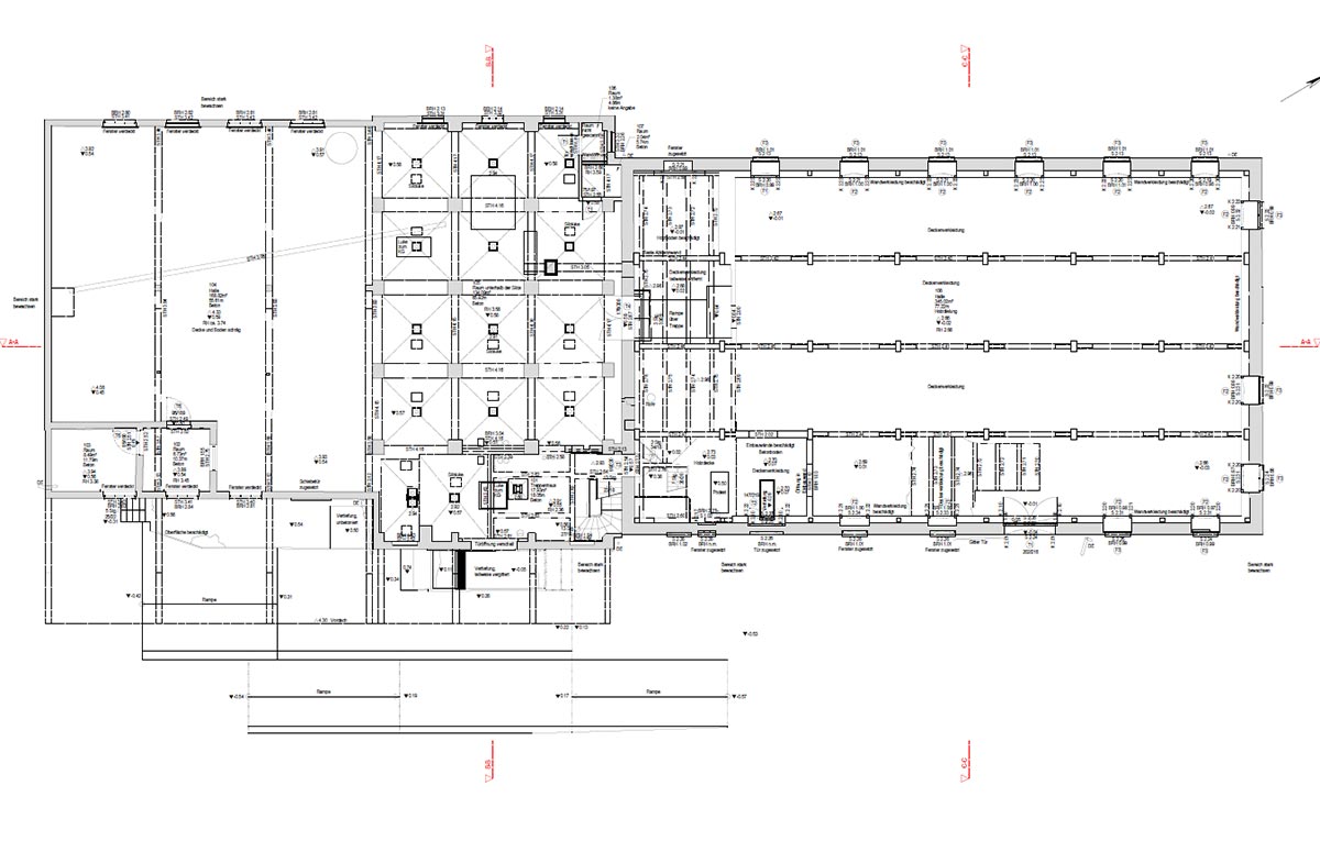
Das Speichergebäude und sein angrenzendes Silo-Gebäude wurden von der Laserscanning Europe GmbH innerhalb kürzester Zeit mit dem FARO FocusS 130 Laserscanner erfasst. Mit Hilfe des Überkopf-3D-Safety-Adapters konnten die Silos von innen gescannt werden.
Anschließend erfolgte die Planableitung auf Grundlage der Punktwolke mittels der Software PointCab Origins in der CAD-Abteilung der Laserscanning Europe GmbH.
Insgesamt wurden vier Fassadenansichten, acht Grundrisse und vier Schnitte in Autodesk AutoCAD erstellt.
Interesse an unserem Service?
Wenn Sie sich für mehr über unsere Modellierungsdienstleistungen erfahren möchten, dann rufen Sie uns gern an oder nutzen Sie unser Kontaktformular. Wir werden alle Ihre Fragen beantworten.








