Bestandsmodellierung Kloster Schlüchtern
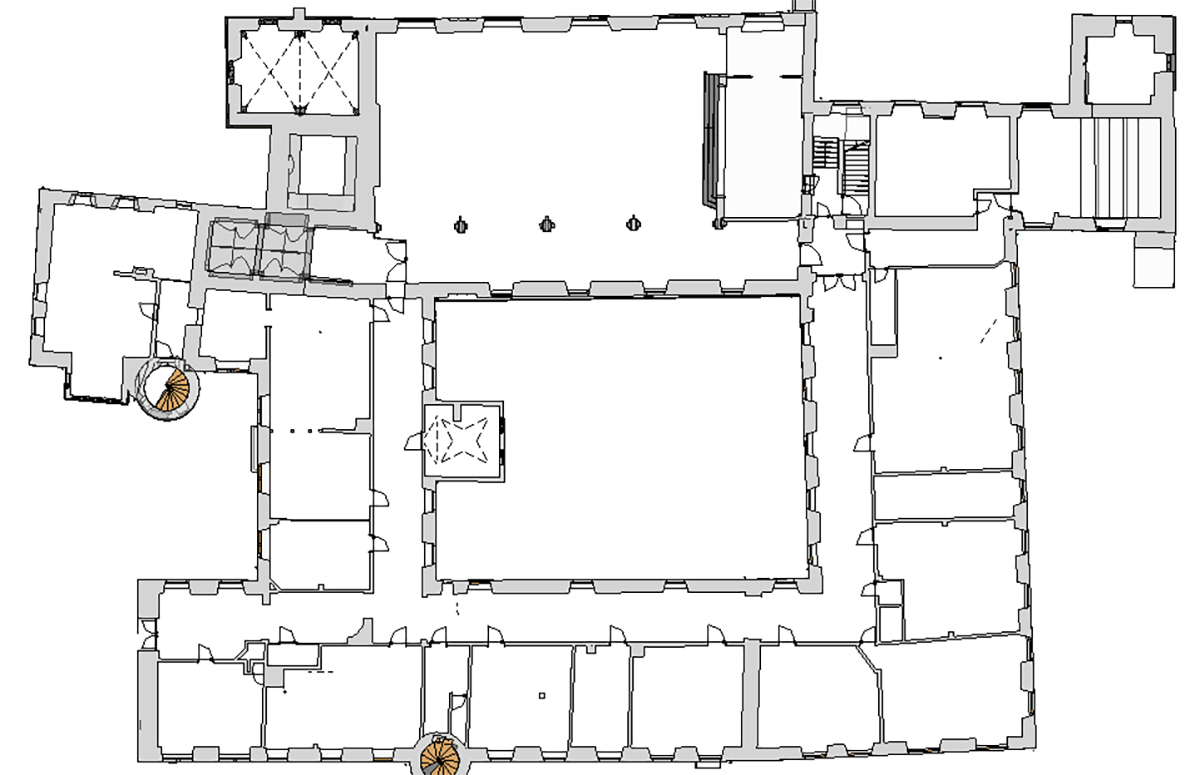
Für eine denkmalgerechte Auswertung des Klosters Schlüchtern wurde das Gebäude vom Keller bis zum Dachgeschoss mit einem Leica Scanner RTC 360 sowie einer Drohnenbefliegung der Fassaden durch das Vermessungsbüro Frommelt erfasst.
Die erzeugten Scandaten nutzte die Laserscanning Europe GmbH für die Modellierung in Autodesk Revit. Eine besondere Herausforderung lag in der Nachbildung von mittelalterlichen Türmen, Gewölben aus Romanik, Gotik und Renaissance, sowie aufwendigen Fassadendetails. Ein weiterer Punkt war die Zusammenführung verschiedener Ebenen und Anbauten, der über mehrere Jahrhunderte immer wieder erweiterten Bausubstanz.
Interesse an unserem Service?
Wenn Sie sich für mehr über unsere Modellierungsdienstleistungen erfahren möchten, dann rufen Sie uns gern an oder nutzen Sie unser Kontaktformular. Wir werden alle Ihre Fragen beantworten.






