Bestandsmodellierung & Planableitung im Revit
Die „Alte Knabenschule“ zählt zum Komplex „Doberaner Hof“ in Rostock. Bei einer Sanierung im Jahr 2000 wurden der Holzfußboden und die hölzerne Schultreppe restauriert. Somit ist der ursprüngliche Charakter des Hauses erhalten geblieben. Seitdem wird das Gebäude von verschiedenen Dienstleistern, Rechtsanwaltbüros sowie Arztpraxen genutzt.
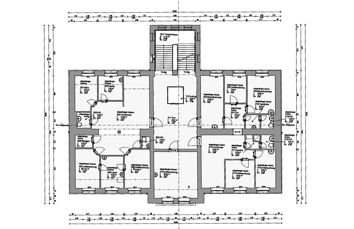
Für eine erneute Bestandsaufnahme des Objekts scannten Experten der Laserscanning Europe GmbH den Innen- und Außenbereich und werteten die Daten anschließend aus. Nach der Modellierung in Autodesk Revit erfolgte die Ableitung der Grundrisspläne und Schnitte direkt vom 3D-Modell. Dies ermöglicht eine schnelle und einfache Nach- bzw. Weiterbearbeitung der Objektdaten in seinen unterschiedlichen Nutzungsphasen.
Interesse an unserem Service?
Wenn Sie sich für mehr über unsere Modellierungsdienstleistungen erfahren möchten, dann rufen Sie uns gern an oder nutzen Sie unser Kontaktformular. Wir werden alle Ihre Fragen beantworten.






