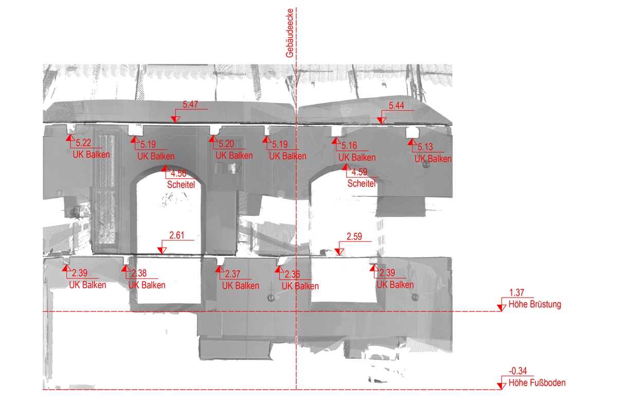
Punktwolken zur bauhistorischen Untersuchung von Kirchen
Punktwolken, Bilder und Orthofotos werden von unseren Kunden häufig für bauhistorische Untersuchungen eingesetzt.
Besonders oft arbeiten wir dabei mit dem Bauforscher Ralf Gesatzky zusammen. Es ist beeindruckend, wie sich moderne Technologien, langjährige Berufserfahrung, Leidenschaft und verschiedene historisch gewachsene Bauzustände und Dokumentationen verknüpfen und für die Kirchensanierung eingesetzt werden.
Sowohl beim anspruchsvollen 3D-Laserscanning vor Ort als auch bei der Auswertung im CAD-System sammelt unser Team mit jedem Projekt neue und interessante Erkenntnisse.
Fachbegriffe, historische Daten, spannende Geschichten, neue Arbeitsaufgaben bereichern dabei unseren Alltag und mit Faszination gehen wir jede neue Kirche an. Wir sind sehr stolz, schon bei über 20 Projekten mitwirken zu dürfen.
Interesse an unserem Service?
Wenn Sie sich für mehr über unsere Modellierungsdienstleistungen erfahren möchten, dann rufen Sie uns gern an oder nutzen Sie unser Kontaktformular. Wir werden alle Ihre Fragen beantworten.





